鶴ヶ島市高倉1092-1 一本松 貸倉庫 詳細データ
この物件の物件番号は 47230 です。
お電話(03-6260-6586)でお問合せの際は物件番号をお知らせ下さい。
※不動産業者様へのご紹介は不可です。
| 物件名 | 一本松 貸倉庫 |
|---|---|
| 沿線/駅 | 東武越生線 / 一本松 |
| バス/徒歩 | バス:- / 徒歩:- |
| 所在地 | 鶴ヶ島市高倉1092-1 |
| 賃料(坪・円) | 坪 12,332 円 (総額 5,586,570 円) |
| 共益費 | |
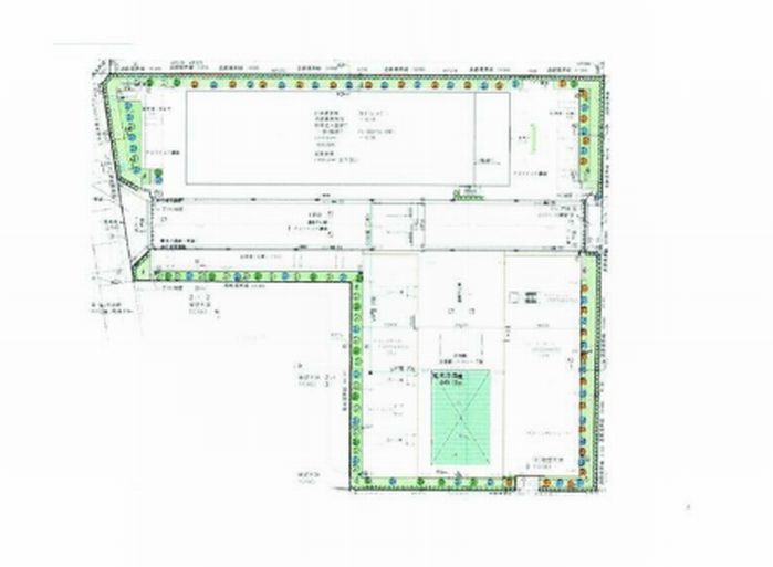
| 使用面積 | 453 坪 |
| 敷地面積 | - 坪 |
| 礼金 | 2 ヶ月 |
| 敷金 | 3 ヶ月 |
| 保証金 | - |
| 構造 | 鉄骨造 |
| 竣工年 | 2026 年 |
| 所在階 | 1/1 階 |
| 接道状況 | - |
| 用途地域 | 無指定 |
| 駐車場 | 有 |
| 契約期間 | 3 年 |
| 現況 | 未完成 |
| 備考 | 天井高5M以上 トイレ 電動シャッター 天井クレーン2.8t1基 駐車場有 |
| 貸倉庫・貸工場・賃貸土地の事業用ポータルサイトNo.1 |
|---|
|
鶴ヶ島市高倉1092-1をはじめ東京・神奈川・千葉・埼玉・横浜・川崎の貸倉庫・貸工場・賃貸土地の情報を検索できます。鶴ヶ島市高倉1092-1の事務所付・ホイスト・クレーン付、キュービクル、工業地域の貸し倉庫・貸し工場もプロがお探しします。鶴ヶ島市高倉1092-1の貸倉庫・貸工場・賃貸土地は物件数No1の不動産iLANDにお任せ下さい。鶴ヶ島市高倉1092-1で貸倉庫・貸工場・賃貸土地を所有のオーナー様には貸し倉庫・貸し工場の広告を掲載致しますので是非、ご相談下さい。貸倉庫・貸工場・賃貸土地を貸したい方も、借りたい方も不動産iLAND! |
東京エリア
- 新橋/
- 浜松町/
- 大崎/
- 五反田/
- 恵比寿/
- 高田馬場/
- 目白/
- 池尻大橋/
- 六本木/
- 青山一丁目/
- 三軒茶屋/
- 下北沢/
- 神田/
- 広尾/
- 麹町/
- 学芸大学/
- 中目黒/
- 九段下/
- 半蔵門/
- 表参道/
- 神保町/
- 高円寺/
- 阿佐ケ谷/
- 荻窪/
- 吉祥寺/
- 浅草/
- 大井町/
- 大森/
- 喜多見/
- 経堂/
- 成城学園前/
- 和泉多摩川/
- 保谷/
- 下赤塚/
- ときわ台/
- 久米川/
- 花小金井/
- 田無/
- 東伏見/
- 武蔵関/
- 上石神井/
- 上井草/
- 鷺ノ宮/
- 都立家政/
- 野方/
- 沼袋/
- 新井薬師前/
- 布田/
- 国領/
- 柴崎/
- つつじヶ丘/
- 仙川/
- 千歳烏山/
- 芦花公園/
- 八幡山/
- 飛田給/
- 西調布/
- 高幡不動/
- 中河原/
- 西国立/
- 玉川上水/
- 武蔵砂川/
- 東福生/
- 箱根ヶ崎/
- 恋ヶ窪/
- 武蔵大和/
- 八坂/
- 高尾/
- 西八王子/
- 北八王子/
- 西立川/
- 東中神/
- 片倉/
- 北野/
- 百草園/
- 聖蹟桜ヶ丘/
- 鷹の台/
- 平山城址公園/
- 八王子みなみ野/
- 相原/
- 南平/
- 東青梅/
- 河辺/
- 小作/
- 牛浜/
- 多摩センター/
- 南大沢/
- 多摩境/
- 唐木田/
- 東秋留/
- 武蔵引田/
- 秋川/
- 武蔵増戸/
- 武蔵五日市/
- めじろ台/
- 上北台/
- 立飛/
- 西府/
- 砂川七番/
- 武蔵新田/
- 二子玉川/
- 鵜の木/
- 馬込/
- 旗の台/
- 西大井/
- 天王洲アイル/
- 茗荷谷/
- 早稲田/
- 舎人公園/
- 谷在家/
- 小竹向原/
神奈川エリア
- 桜木町/
- 山手/
- 青葉台/
- 金沢文庫/
- 相模大野/
- 湘南台/
- 辻堂/
- 武蔵小杉/
- 本厚木/
- 鷺沼/
- 藤が丘/
- 田名/
- 希望ヶ丘/
- 鶴ヶ峰/
- かしわ台/
- 北山田/
- 小机/
- 川和町/
- 岸根公園/
- 片倉町/
- 三ッ沢下町/
- 並木中央/
- 北久里浜/
- 鶴見市場/
- 上溝/
- 番田/
- 原当麻/
- いずみ中央/
- 緑園都市/
- 弥生台/
- 二宮/
- 鴨宮/
- 渋沢/
- 平沼橋/
- 西横浜/
- 天王町/
- 東神奈川/
- 阪東橋/
- 東林間/
- 三崎口/
千葉エリア
- 新浦安/
- 舞浜/
- 西船橋/
- 本八幡/
- 幕張/
- 蘇我/
- 東松戸/
- みのり台/
- 常盤平/
- 五香/
- 初富/
- 鎌ヶ谷大仏/
- 三咲/
- 馬橋/
- 七光台/
- 清水公園/
- 初石/
- 流山おおたかの森/
- 湖北/
- 布佐/
- 塚田/
- 西千葉/
- 志津/
- 榎戸/
- 日向/
- 滑河/
- 巌根/
- 小見川/
- 八日市場/
- 干潟/
- 新検見川/
- 下総神崎/
- 南酒々井/
- 東船橋/
- 土気/
- 本納/
- 印西牧の原/
- 千葉ニュータウン中央/





