三浦市三崎町諸磯42 岸本商店倉庫 詳細データ
この物件の物件番号は 37183 です。
お電話(03-6260-6586)でお問合せの際は物件番号をお知らせ下さい。
※不動産業者様へのご紹介は不可です。
    
    | 物件名 | 岸本商店倉庫 | 
|---|---|
| 沿線/駅 | 京浜急行久里浜線 / 三崎口 | 
| バス/徒歩 | バス:13 分 / 徒歩:2 分 | 
| 所在地 | 三浦市三崎町諸磯42 | 
| 賃料(坪・円) | 坪 5,714 円 (総額 200,000 円) | 
| 共益費 | |
| 使用面積 | 35 坪 | 
| 敷地面積 | 52.28 坪 | 
| 礼金 | 2 ヶ月 | 
| 敷金 | |
| 保証金 | 5ヶ月分 | 
| 構造 | 木造 | 
| 竣工年 | 2002 年 | 
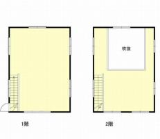
| 所在階 | -/2/2 階 | 
| 接道状況 | 1 | 
| 用途地域 | 無指定 | 
| 駐車場 | 有 | 
| 契約期間 | 3 年 | 
| 現況 | 現空 | 
| 備考 | 駐車スペース有 照明器具(残置物) 飲食店可 | 
| 貸倉庫・貸工場・賃貸土地の事業用ポータルサイトNo.1 | 
|---|
| 
               三浦市三崎町諸磯42をはじめ東京・神奈川・千葉・埼玉・横浜・川崎の貸倉庫・貸工場・賃貸土地の情報を検索できます。三浦市三崎町諸磯42の事務所付・ホイスト・クレーン付、キュービクル、工業地域の貸し倉庫・貸し工場もプロがお探しします。三浦市三崎町諸磯42の貸倉庫・貸工場・賃貸土地は物件数No1の不動産iLANDにお任せ下さい。三浦市三崎町諸磯42で貸倉庫・貸工場・賃貸土地を所有のオーナー様には貸し倉庫・貸し工場の広告を掲載致しますので是非、ご相談下さい。貸倉庫・貸工場・賃貸土地を貸したい方も、借りたい方も不動産iLAND!  | 
東京エリア
- 新橋/
 - 浜松町/
 - 大崎/
 - 五反田/
 - 恵比寿/
 - 高田馬場/
 - 目白/
 - 池尻大橋/
 - 六本木/
 - 青山一丁目/
 - 三軒茶屋/
 - 下北沢/
 - 神田/
 - 広尾/
 - 麹町/
 - 学芸大学/
 - 中目黒/
 - 九段下/
 - 半蔵門/
 - 表参道/
 - 神保町/
 - 高円寺/
 - 阿佐ケ谷/
 - 荻窪/
 - 吉祥寺/
 - 浅草/
 - 大井町/
 - 大森/
 - 喜多見/
 - 経堂/
 - 成城学園前/
 - 和泉多摩川/
 - 保谷/
 - 下赤塚/
 - ときわ台/
 - 久米川/
 - 花小金井/
 - 田無/
 - 東伏見/
 - 武蔵関/
 - 上石神井/
 - 上井草/
 - 鷺ノ宮/
 - 都立家政/
 - 野方/
 - 沼袋/
 - 新井薬師前/
 - 布田/
 - 国領/
 - 柴崎/
 - つつじヶ丘/
 - 仙川/
 - 千歳烏山/
 - 芦花公園/
 - 八幡山/
 - 飛田給/
 - 西調布/
 - 高幡不動/
 - 中河原/
 - 西国立/
 - 玉川上水/
 - 武蔵砂川/
 - 東福生/
 - 箱根ヶ崎/
 - 恋ヶ窪/
 - 武蔵大和/
 - 八坂/
 - 高尾/
 - 西八王子/
 - 北八王子/
 - 西立川/
 - 東中神/
 - 片倉/
 - 北野/
 - 百草園/
 - 聖蹟桜ヶ丘/
 - 鷹の台/
 - 平山城址公園/
 - 八王子みなみ野/
 - 相原/
 - 南平/
 - 東青梅/
 - 河辺/
 - 小作/
 - 牛浜/
 - 多摩センター/
 - 南大沢/
 - 多摩境/
 - 唐木田/
 - 東秋留/
 - 武蔵引田/
 - 秋川/
 - 武蔵増戸/
 - 武蔵五日市/
 - めじろ台/
 - 上北台/
 - 立飛/
 - 西府/
 - 砂川七番/
 - 武蔵新田/
 - 二子玉川/
 - 鵜の木/
 - 馬込/
 - 旗の台/
 - 西大井/
 - 天王洲アイル/
 - 茗荷谷/
 - 早稲田/
 - 舎人公園/
 - 谷在家/
 - 小竹向原/
 
神奈川エリア
- 桜木町/
 - 山手/
 - 青葉台/
 - 金沢文庫/
 - 相模大野/
 - 湘南台/
 - 辻堂/
 - 武蔵小杉/
 - 本厚木/
 - 鷺沼/
 - 藤が丘/
 - 田名/
 - 希望ヶ丘/
 - 鶴ヶ峰/
 - かしわ台/
 - 北山田/
 - 小机/
 - 川和町/
 - 岸根公園/
 - 片倉町/
 - 三ッ沢下町/
 - 並木中央/
 - 北久里浜/
 - 鶴見市場/
 - 上溝/
 - 番田/
 - 原当麻/
 - いずみ中央/
 - 緑園都市/
 - 弥生台/
 - 二宮/
 - 鴨宮/
 - 渋沢/
 - 平沼橋/
 - 西横浜/
 - 天王町/
 - 東神奈川/
 - 阪東橋/
 - 東林間/
 - 三崎口/
 
千葉エリア
- 新浦安/
 - 舞浜/
 - 西船橋/
 - 本八幡/
 - 幕張/
 - 蘇我/
 - 東松戸/
 - みのり台/
 - 常盤平/
 - 五香/
 - 初富/
 - 鎌ヶ谷大仏/
 - 三咲/
 - 馬橋/
 - 七光台/
 - 清水公園/
 - 初石/
 - 流山おおたかの森/
 - 湖北/
 - 布佐/
 - 塚田/
 - 西千葉/
 - 志津/
 - 榎戸/
 - 日向/
 - 滑河/
 - 巌根/
 - 小見川/
 - 八日市場/
 - 干潟/
 - 新検見川/
 - 下総神崎/
 - 南酒々井/
 - 東船橋/
 - 土気/
 - 本納/
 - 印西牧の原/
 - 千葉ニュータウン中央/
 





